![]() |
![]() |
![]() |
||
Profile zatrudnienia |
Zrealizowane projekty |
O mnie |
||
![]() |
![]() |
![]() |
||
![]() |
||||
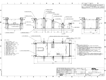
Obrotowe stanowisko spawalnicze |
||||
Stanowisko to, wykonane w firmie APW Poland, umożliwiło znaczne zwiekszenie wydajności produkcji detali dla projekty RES. Technologia początkowa przewidywała montaż 8 szt. korpusów przez 2 pracowników w czasie 1 zmiany.
Stanowisko to składa się z odpowiednio przygotowanego szkieletu z uchwytami zaciskowymi, który odwzorowuje kształt montowanego korpusu oraz z obrotowo zawieszonej podstawy umożliwiającej manipulowanie detalem wokół osi podłużnej.
Stanowisko w znaczny sposób ułatwiło pracę. Dowodem tego jest dokonana wkrótce zmiana w technologii produkcji, przewidująca użycie opisywanego stanowiska obsługiwanego przez jednego tylko pracownika z wydajnością 15 korpusów szaf na zmianę. W projektowaniu zastosowano:
![]() |
||||
|
||||
|
Marek Sawistowski © 2010
Projekt:
Specjalne stanowisko spawalnicze, zwiększenie wydajności produkcji, zmniejszenie pracochłonności. |
||||